16961982
525
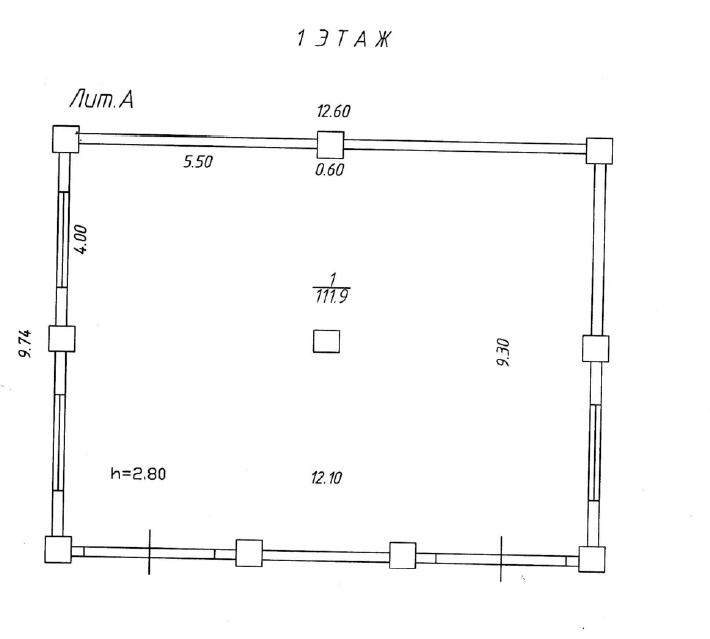
Нежилое помещение на продажу, 100 м²
обл. Московская, р-н Мытищинский, сельское поселение Федоскинское, Лобненский лесопарк
Физтех
Расстояние от МКАД 14,00 км
Назначение
Свободное
Площадь
404,5 м²
Этажность
1
Ваш онлайн-консультант
Получите консультацию по всем интересующим вопросам
Дата начала приёма заявок
07.11.2025, 17:00
Дата окончания приёма заявок
10.12.2025, 12:00
Отбор участников
17.12.2025, 07:00
Проведение торгов
19.12.2025, 07:00
Подведение итогов
19.12.2025, 14:00
Тип объекта
Здание
Кадастровый номер
50:12:0000000:8806, 50:12:0000000:8805, 50:12:0000000:8800, 50:12:0000000:8796
Расстояние от МКАД
14,00 км
Площадь здания
404,50 м²
Функциональное назначение
Свободное
Этажность
1
Наличие лифта
Нет
Наличие грузового лифта
Нет
Расположение и инфраструктура
Как участвовать в торгах?
Ознакомьтесь с пошаговой инструкцией, в которой вы найдете всю необходимую информацию для участия в торгах.
Узнать больше об участии в торгахВаш онлайн-консультант
Получите консультацию по всем интересующим вопросам

















































































































