16965519
355
Нежилое помещение в аренду, 672,2 м²
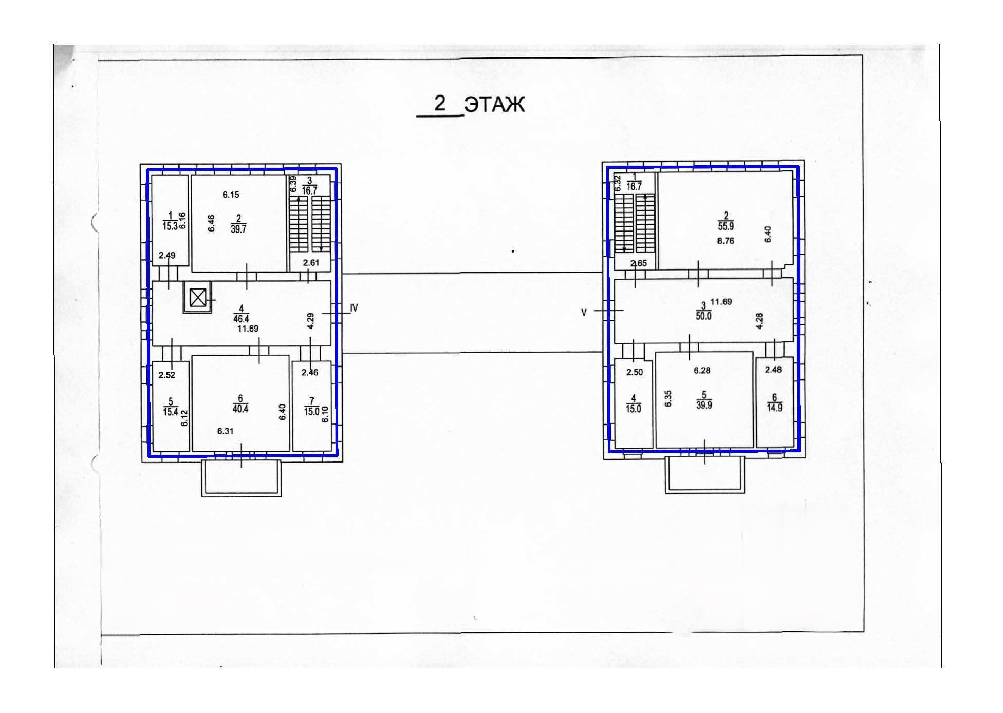
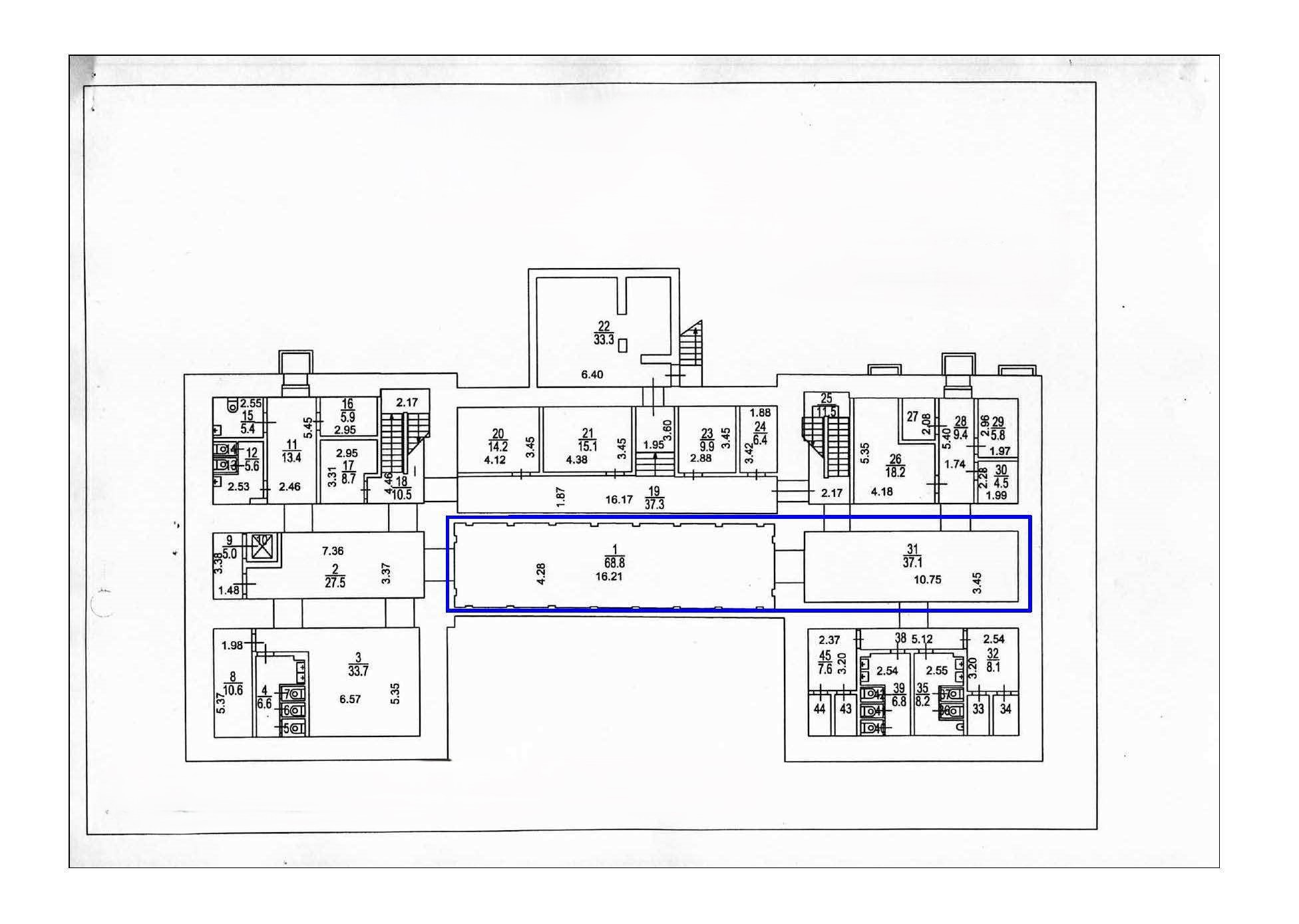
ЮВАО, р-н Люблино, Летняя ул., д. 2, стр. 1, подвал, пом. I, комн. 1, 31; этаж 1, пом. III, комн. 1–4; этаж 2, пом. IV, комн. 1–7, пом. V, комн. 1–6
Волжская
13 минут пешком
13 минут на транспорте
Площадь
672,2 м²
Этаж
Подвал, 1, 2
Этажность
2
Ваш онлайн-консультант
Получите консультацию по всем интересующим вопросам
Дата начала приёма заявок
24.10.2025, 21:00
Дата окончания приёма заявок
24.11.2025, 12:00
Отбор участников
26.11.2025, 07:00
Проведение торгов
27.11.2025, 07:00
Подведение итогов
28.11.2025, 14:00
Тип объекта
Нежилое помещение
Кадастровый номер
77:04:0004008:1021
Площадь объекта
672,2 м²
Функциональное назначение
Культурно-досуговое
Этаж
Подвал, 1, 2
Тип входа
Отдельный
Перечень помещений
Не указано
Расположение и инфраструктура
Как участвовать в торгах?
Ознакомьтесь с пошаговой инструкцией, в которой вы найдете всю необходимую информацию для участия в торгах.
Узнать больше об участии в торгахВаш онлайн-консультант
Получите консультацию по всем интересующим вопросам

































































