16972569
299
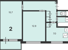
2-комн. квартира на продажу, 47,1 м²
ЗелАО, г. Зеленоград, корп. 440, этаж 9, кв. 212
Пятницкое шоссе
263 минуты пешком
80 минут на транспорте
Расстояние от МКАД 18,60 км
Общая площадь
47,1 м²
Жилая площадь
28,6 м²
Площадь кухни
7 м²
Этаж
9 из 9
Отделка
С отделкой
Год постройки
1968
Ваш онлайн-консультант
Получите консультацию по всем интересующим вопросам
Дата начала приёма заявок
06.10.2025, 17:00
Дата окончания приёма заявок
07.11.2025, 12:00
Отбор участников
14.11.2025, 12:00
Проведение торгов
18.11.2025, 09:00
Подведение итогов
18.11.2025, 14:00
Тип объекта
Квартира
Кадастровый номер
77:10:0002002:7098
Расстояние от МКАД
18,60 км
Тип дома
Монолитные (бетонные)
Год постройки
1968
Парковка
Наземная
Наличие лифта
Да
Наличие грузового лифта
Да
Площадь объекта
47,1 м²
Этажность дома
9
Этаж
9
Номер квартиры
212
Количество комнат
2
Ремонт
С отделкой
Площадь жилая
28,6 м²
Площадь кухни
7 м²
Наличие балкона
Нет
Наличие лоджии
Да
Высота потолков
2,65 - 2,65 м
Количество санузлов
1 санузел
Расположение и инфраструктура
Как участвовать в торгах?
Ознакомьтесь с пошаговой инструкцией, в которой вы найдете всю необходимую информацию для участия в торгах.
Узнать больше об участии в торгахВаш онлайн-консультант
Получите консультацию по всем интересующим вопросам









































