16963512
941
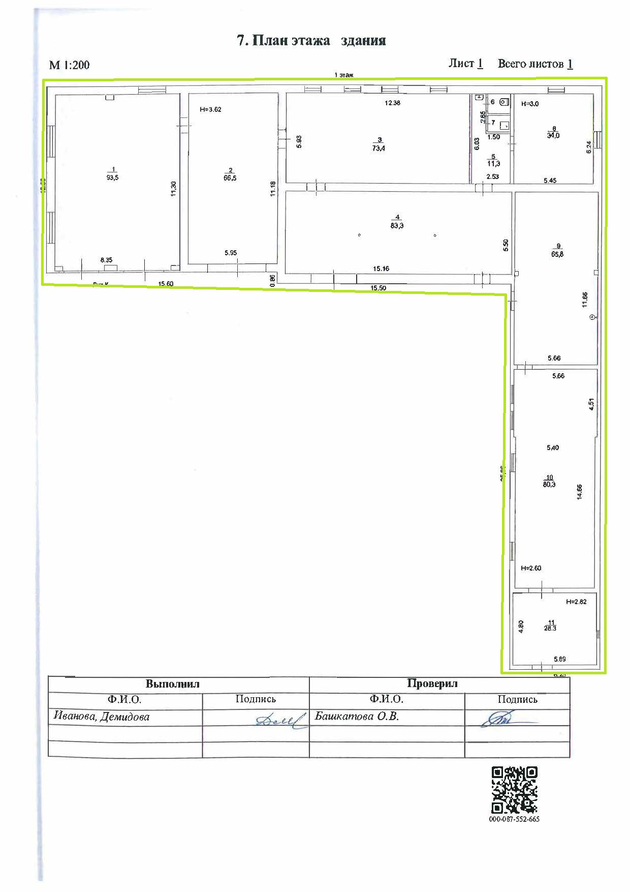
Здание на продажу, 3584,2 м²
Московская обл., Чеховский р-н, с Троицкое, ул. Строителей, корп. 1, корп. 1-1, корп. 1-2, корп. 1-4, корп. 1-5, стр.1-3, вл. 6 стр. 1, вл 6, стр.2, корп. 1-6, р-н. Чеховский, с. Троицкое, д. 10, корп. А
Расстояние от МКАД 36,00 км
Назначение
Свободное
Площадь
3 584,2 м²
Этажность
2
Ваш онлайн-консультант
Получите консультацию по всем интересующим вопросам
Дата начала приёма заявок
07.11.2025, 17:00
Дата окончания приёма заявок
19.01.2026, 12:00
Отбор участников
26.01.2026, 07:00
Проведение торгов
29.01.2026, 07:00
Подведение итогов
29.01.2026, 14:00
Тип объекта
Здание
Кадастровый номер
50:31:0030305:257, 50:31:0030305:258, 50:31:0030305:256, 50:31:0030305:255, 50:31:0030305:250, 50:31:0030305:249, 50:31:0030305:446, 50:31:0030305:445, 50:31:0030305:440, 50:31:0030307:322
Расстояние от МКАД
36,00 км
Площадь здания
3584,20 м²
Функциональное назначение
Свободное
Этажность
2
Расположение и инфраструктура
Как участвовать в торгах?
Ознакомьтесь с пошаговой инструкцией, в которой вы найдете всю необходимую информацию для участия в торгах.
Узнать больше об участии в торгахВаш онлайн-консультант
Получите консультацию по всем интересующим вопросам

































































































































































































































